
PROJECTS : RESIDENTIAL
Residential projects refer to construction or development projects that focus on creating housing or living spaces for individuals or families. The goal of residential projects is to provide comfortable, functional, and aesthetically pleasing living environments that meet the needs and preferences of residents. This involves careful planning, design, and construction processes to ensure that the resulting homes or dwellings are safe, durable, and conducive to a high quality of life.
Crafting Dreams, Building Homes: Where Your Vision Meets Reality
FEATURED PROJECTS : RESIDENTIAL
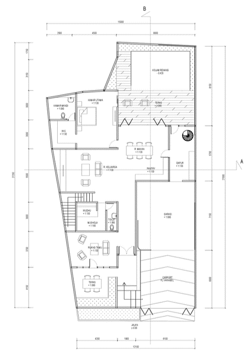
RUMAH CIMANGGIS
Bangunan rumah tinggal ini mengusung gaya arsitektur modern tropis. Tampilan dan pengolahan massa bangunan yang didominasi dengan garis-garis modern yang tegas diperlunak dengan penggunaan material-material yang memiliki rasa tropis, seperti kayu, batu alam dan permainan elemen vegetasi yang membuat bangunan tampil tegas tetapi jauh dari kesan dingin.
FEATURED LOCATION
Cimanggis
ESTABLISHED
2022
CLIENTS
Mr DD
FEATURED PROJECTS : RESIDENTIAL
RUMAH UTAN KAYU
Rumah ini menghadirkan sentuhan warna biru cerah pada tembok bagian luar yang kontras dengan warna hijau taman, mencerminkan suasana yang menyenangkan. Dengan sentuhan desain interior yang memadukan harmoni warna putih, hitam, motif kayu dan motif marmer memberikan kesan elegan. Dominasi kayu pada beberapa elemen interior menambahkan kesan kehangatan alami yang menyatu dengan kesan elegan dalam ruang.
FEATURED LOCATION
Utan Kayu Selatan
ESTABLISHED
2020
CLIENTS
Mr. MJ
FEATURED PROJECTS : RESIDENTIAL
RUMAH CIPAKU
Rumah Cipaku mengadopsi gaya asli bangunan Indonesia yaitu Arsitektur Jengki, terlihat dari benruk atapnya yang membuat rumah ini menjadi eksotis dan memiliki aksen tersendiri dari bangunan sekitarnya.
FEATURED LOCATION
Cipaku
ESTABLISHED
2021
CLIENTS
Mrs YK
FEATURED PROJECTS : RESIDENTIAL
RUMAH ALAM SUTERA
Perencanaan bangunan rumah tinggal yang lahannya berada di hoek ini bernagkat dari permainan box-box yang disusun diatas sebuah area hijau untuk mendapatkan kesan kontras antara bangunan dan area dibawahnya. Lebih jauh lagi, permainan box-box pada massa bangunan diperdalam dengan adanya massa yang massif, semi transparent dan transparent melalui permainan material kaca, dinding dan loster
FEATURED LOCATION
Alam Sutera
ESTABLISHED
2017
CLIENTS
Mr ED
FEATURED PROJECTS : RESIDENTIAL
RUMAH CIBUBUR
Perencanaan bangunan rumah tinggal yang berlokasi di cibubur ini berangkat dari permintaan untuk melakukan penyesuaian dari bangunan yang sudah ada. Dengan tetap menyesuaikan terhadap kondisi bangunan yang ada, beberapa pendekatan modernisasi bentuk dan material diterapkan pada perencanaanya.
FEATURED LOCATION
Cibubur
ESTABLISHED
2022
CLIENTS
Mr DD
FEATURED PROJECTS : RESIDENTIAL
RUMAH PEJATEN
Dua orientasi bangunan rumah tinggal yang disatukan dengan area kolam renang sebagai elemen penghubung, memberikan keselarasan antara ruang dalam dan luar. Penggunaan material batu alam tidak hanya memberikan daya tahan yang luar biasa, tetapi juga berfungsi sebagai insulasi termal alami yang menjaga kesejukan di dalam rumah.
FEATURED LOCATION
Jakarta Selatan, DKI Jakarta
ESTABLISHED
2024
CLIENTS
Individual
FEATURED PROJECTS : RESIDENTIAL
RUMAH DUREN SAWIT
Rumah tinggal ini mencerminkan estetika hangat dan alami yang umum pada struktur vernakular seperti rumah-rumah Jawa dan Bali. Atap miring didesain untuk menangani curah hujan tinggi. Pencahayaan alami dan ventilasi diperhatikan dengan baik melalui penggunaan ruang terbuka dan jendela besar. Perpaduan antara material beton, batu alam, dan kayu, menciptakan harmoni sempurna dengan lingkungan sekitar. Setiap sudut dirancang dengan efisiensi dan estetika, menghadirkan kenyamanan maksimal.
FEATURED LOCATION
Jakarta Timur, DKI Jakarta
ESTABLISHED
2022
CLIENTS
Individual
FEATURED PROJECTS : RESIDENTIAL
RUMAH GALAXY
Desain rumah ini menonjolkan gaya modern minimalis dengan garis-garis tegas dan permainan volume yang dinamis. Fasad yang sederhana namun elegan didukung oleh kombinasi material yang memberikan kesan kokoh dan privasi yang terjaga. Sentuhan tanaman pada balkon menambahkan nuansa alami yang menyegarkan, menciptakan keseimbangan antara estetika kontemporer dan kenyamanan hunian yang harmonis dengan lingkungan sekitar.
FEATURED LOCATION
Bekasi, Jawa Barat
ESTABLISHED
2022
CLIENTS
Individual
FEATURED PROJECTS : RESIDENTIAL
RUMAH CIPINANG
Desain rumah ini menampilkan perpaduan modernitas dengan elemen yang tegas dan minimalis. Penggunaan warna hitam, putih, dan sentuhan bata ekspos menciptakan kesan elegan sekaligus hangat. Struktur geometris yang berani dan permainan garis vertikal pada fasad memberikan kesan dinamis dan modern. Kehadiran tanaman hijau di sekitar rumah menambah nuansa alami yang menyejukkan di tengah estetika kontemporer.
FEATURED LOCATION
Jakarta Timur, DKI Jakarta
ESTABLISHED
2021
CLIENTS
Individual
FEATURED PROJECTS : RESIDENTIAL
RUMAH TEBET
Desain rumah ini menampilkan perpaduan arsitektur modern dengan sentuhan tradisional yang elegan. Bentuk atap limasan yang khas, menciptakan nuansa hangat dan alami. Penataan rumah yang terangkat di atas permukaan tanah memberikan kesan ringan sekaligus meningkatkan privasi penghuni. Kehadiran tanaman hijau di sekelilingnya menambah kesegaran dan harmoni, menjadikan hunian ini sebagai tempat tinggal yang nyaman dan asri di tengah lingkungan urban.
FEATURED LOCATION
Jakarta Selatan, DKI Jakarta
ESTABLISHED
2022
CLIENTS
Individual
FEATURED PROJECTS : RESIDENTIAL
RUMAH TEBET TIMUR
Bangunan rumah Tebet Timur yang direnovating dengan merombak bangunan eksisting tapi tetap mempertimbangkan kondisi layouting pada bangunan yang ada untuk menyegarkan kembali layout bangunan dengan tata ruang yang lebih tebuka. kombinasi yang seimbang antara elemen alam yang dihadirkan dari sisi hunian. Dipadukan dengan warna monokrom di dalamnya. Menjadikan warna putih sebagai warna dasar pada aspek bangunannya melahirkan kesan elegan dan modern secara bersamaan.
FEATURED LOCATION
Jakarta Selatan, DKI Jakarta
ESTABLISHED
2021
CLIENTS
Individual
FEATURED PROJECTS : RESIDENTIAL
RUMAH CAKUNG
Hunian ini menghadirkan suasana asri dengan desain modern yang menonjolkan elemen alami. Kolam yang dikelilingi oleh dek kayu dan taman minimalis menciptakan area relaksasi yang nyaman dan menenangkan. Fasad bangunan menggunakan mateial beton dan garis-garis tegas dengan jendela tinggi yang memberikan kesan minimalis sekaligus elegan. Sentuhan roster pada dinding samping menambah karakter unik pada rumah ini, memberikan privasi tanpa menghalangi aliran cahaya dan udara.
FEATURED LOCATION
Jakarta Timur, DKI Jakarta
ESTABLISHED
2018
CLIENTS
Individual
FEATURED PROJECTS : RESIDENTIAL
TEBING TEDUH
Villa "Tebing Teduh" di Bali ini menghadirkan harmoni antara arsitektur modern dan elemen alami dengan sentuhan tebing yang khas. Terinspirasi dari kontur alami Bali, villa ini memanfaatkan dinding batu yang kokoh dan bentuk teras bertingkat yang mengikuti garis tebing, menciptakan nuansa yang sejuk dan alami. Vegetasi tropis yang tumbuh subur di sekitar villa menambah kesan alami sekaligus memberikan privasi. Desain yang minimalis namun elegan ini menjadikan villa sebagai tempat ideal untuk bersantai di tengah keteduhan tebing-tebing Bali, jauh dari hiruk pikuk kehidupan sehari-hari.
FEATURED LOCATION
Kabupaten Badung, Bali
ESTABLISHED
2021
CLIENTS
Individual
FEATURED PROJECTS : RESIDENTIAL
RUMAH BANDUNG
Rumah modern ini menghadirkan desain arsitektur minimalis dengan sentuhan elegan. Bangunan ini memiliki fasad putih bersih yang kontras dengan elemen beton abu-abu, menciptakan tampilan yang berkelas dan modern. Teras di lantai dua memberikan kesan terbuka yang menyatu dengan alam sekitar, sementara garasi yang terletak di bawah menambah fungsionalitas hunian.
FEATURED LOCATION
Bandung, Jawa Barat
ESTABLISHED
2021
CLIENTS
Individual
FEATURED PROJECTS : RESIDENTIAL
RUMAH SENTUL
Bangunan ini menampilkan desain arsitektur yang unik dan modern, dengan perpaduan elemen kayu vertikal yang memberikan sentuhan alami pada keseluruhan tampilan. Desain yang terbuka di lantai atas menambahkan kesan ringan dan harmonis, menjadikan bangunan ini pusat perhatian di sekitarnya.
FEATURED LOCATION
Bogor, Jawa Barat
ESTABLISHED
2021
CLIENTS
Individual
FEATURED PROJECTS : RESIDENTIAL
RUMAH KARAWACI
Perencanaan bangunan rumah tinggal yang bersifat renovasi ini berlokasi di Karawaci, Tangerang. Berangkat dari keinginan untuk mendapatkan sebuah tampilan facade bangunan yang sama sekali berbeda dengan kondisi sebelumnya. Permainan sirip-sirip pada facade seolah menjadi kulit kedua bangunan dan secara pasti merubah total tampilan bangunan secara drastis.
FEATURED LOCATION
Tangerang, Banten
ESTABLISHED
2018
CLIENTS
Individual
FEATURED PROJECTS : RESIDENTIAL
RUMAH SEWA GALUR SARI
Bangunan ini adalah rumah kontrakan dengan penampilan gaya arsitektur klasik dengan sentuhan modern yang elegan. Fasadnya dihiasi dengan elemen lengkung dan simetri yang kuat, menciptakan kesan megah dan teratur. Warna putih yang dominan memberikan kesan bersih dan luas.
FEATURED LOCATION
Jakarta Timur, DKI Jakarta
ESTABLISHED
2021
CLIENTS
Individual
FEATURED PROJECTS : RESIDENTIAL
RUMAH PASAR MINGGU
Desain rumah modern minimalis ini memadukan elemen natural dengan material kontemporer, menciptakan hunian yang elegan dan nyaman. Dengan fasad beton bertekstur dan pola geometris yang artistik, rumah ini juga memiliki area hijau yang menyegarkan di bagian depan, menambah kesan asri.
FEATURED LOCATION
Jakarta Selatan, DKI Jakarta
ESTABLISHED
2021
CLIENTS
Individual
FEATURED PROJECTS : RESIDENTIAL
RUMAH UTAN KAYU UTARA
Rumah ini dirancang khusus untuk memaksimalkan ruang pada lahan sempit, tanpa mengorbankan kenyamanan atau estetika.Rumah minimalis modern ini memanfaatkan ruang vertikal dengan desain yang ramping namun tetap fungsional. Dirancang dengan efisien di setiap sudutnya sehingga menghadirkan ruang yang nyaman dan fungsional.
FEATURED LOCATION
Jakarta Pusat, DKI Jakarta
ESTABLISHED
2021
CLIENTS
Individual
FEATURED PROJECTS : RESIDENTIAL
RUMAH JALAN MADRASAH
Desain arsitektur rumah tinggal yang berlokasi di Kemang, Jakarta Selatan ini menampilkan keanggunan klasik yang berpadu dengan suasana tropis yang segar. Kolam renang yang mengalir di antara bangunan dengan jembatan melengkung menambah daya tarik estetika dan memberikan kesan ruang yang luas dan nyaman.
FEATURED LOCATION
Jakarta Selatan, DKI Jakarta
ESTABLISHED
2019
CLIENTS
Individual
FEATURED PROJECTS : RESIDENTIAL
RUMAH CONDET
Rumah modern ini menggabungkan elemen arsitektur tradisional dengan sentuhan kontemporer. Mengusung konsep semi terbuka dengan penataan ruang yang memungkinkan sirkulasi udara dan cahaya alami masuk secara optimal. Taman dalam rumah menambah kesan asri dan segar, memberikan suasana yang sejuk dan nyaman di setiap sudut hunian.
FEATURED LOCATION
Jakarta Timur, DKI Jakarta
ESTABLISHED
2009
CLIENTS
Individual
FEATURED PROJECTS : RESIDENTIAL
RUMAH KEMANG
Perencanaan bangunan rumah tinggal yang berlokasi di Kemang ini berangkat dari konsep modern minimalis. Dengan fasad kayu yang kontras dengan kaca besar yang menghubungkan interior dan eksterior. Kolam kecil di halaman menambah elemen ketenangan yang memperkuat kesan rumah sebagai tempat berlindung yang tenang dan damai.
FEATURED LOCATION
Jakarta Timur, DKI Jakarta
ESTABLISHED
2009
CLIENTS
Individual
FEATURED PROJECTS : RESIDENTIAL
RUMAH CIBUBUR
Bangunan hasil renovasi ini menampil kan fasad aksen kayu dan batu alam memberikan tampilan yang segar dan lebih kontemporer dibandingkan dengan desain aslinya. Penambahan carport dengan atap transparan memberikan perlindungan ekstra bagi kendaraan, sementara taman kecil di depan rumah menambah elemen hijau yang menyegarkan. Renovasi ini berhasil meningkatkan estetika dan kenyamanan, menjadikan rumah ini lebih sesuai dengan kebutuhan dan gaya hidup modern.
FEATURED LOCATION
Jakarta Timur, DKI Jakarta
ESTABLISHED
2020
CLIENTS
Individual
FEATURED PROJECTS : RESIDENTIAL
APARTEMEN BELLAGIO
​Perencanaan Renovasi Interior kamar tidur yang berlokasi di Apartemen Bellagio yang tepatnya di Mega Kuningan – Jakarta Selatan ini memiliki desain berkonsep modern minimalis. Dengan adanya furniture dengan model dinamis dengan finishing besi warna hitam dipadukan dengan memakai warna lapisan yang natural membuat ruang menjadi lebih nyaman dan tetap menyesuaikan interior lainnya.
FEATURED LOCATION
Jakarta Selatan, DKI Jakarta
ESTABLISHED
2024
CLIENTS
Individual
FEATURED PROJECTS : RESIDENTIAL
RUMAH BOGOR
Interior ini mengusung konsep minimalis modern dengan pemanfaatan ruang yang efektif dan desain yang bersih. Ruang santai yang didekorasi dengan bean bag merah menciptakan nuansa kasual, dipisahkan oleh panel kayu vertikal yang memberikan aksen estetis serta privasi. Di area makan, meja putih berpadu dengan kursi hitam memberikan kontras yang kuat, sementara pencahayaan gantung menambah suasana hangat dan intim. Kombinasi tangga kayu dengan lantai marmer semakin memperkuat kesan elegan, menjadikan ruangan ini cocok untuk bersantai maupun aktivitas bersama keluarga dan teman
FEATURED LOCATION
Bogor, Jawa Barat
ESTABLISHED
2017
CLIENTS
Individual
FEATURED PROJECTS : RESIDENTIAL
RUMAH JAKARTA TIMUR
Perencanaan interior rumah tinggal yang berlokasi di Rawamangun – Jakarta Timur ini memiliki desain berkonsep minimalis dengan pemilihan warna yang kuat. Warna-warna yang dipilih untuk material maupun furniture saling berkesinambungan walaupun terlihat kontras.
FEATURED LOCATION
Jakarta Timur, DKI Jakarta
ESTABLISHED
2011
CLIENTS
Individual
FEATURED PROJECTS : RESIDENTIAL
RUMAH PULO GADUNG
Perencanaan interior rumah tinggal ini memiliki konsep tropis minimalis. Dapat dilihat dari banyaknya bukaan dalam bangunan serta penggunaan material yang selaras membuat ruangan terkesan lebih luas. Memakai roster serta kaca pada bukaan membuat sirkulasi udara dan cahaya matahari berputar secara maksimal. Adanya kolam renang di tengah-tengah ruangan memberikan kesan lebih eksklusif.
FEATURED LOCATION
Jakarta Timur, DKI Jakarta
ESTABLISHED
2010
CLIENTS
Individual
FEATURED PROJECTS : RESIDENTIAL
THE BUKIT
Perencanaan interior rumah tinggal yang berlokasi di Ancol – Jakarta Utara ini berangkat dari permintaan untuk melakukan penyesuaian dari area lingkungan sekitar dengan tetap menyesuaikan terhadap kondisi area bangunan yang ada, konsep interior mengacu pada pendekatan minimalis dan modern. Terlihat dari bentuk, material, furniture serta warna yang diterapkan pada perencanaanya.
FEATURED LOCATION
Jakarta Utara, DKI Jakarta
ESTABLISHED
2008
CLIENTS
Individual
FEATURED PROJECTS : RESIDENTIAL
ROOFTOP GARDEN
Rooftop garden ini merupakan hasil renovasi lantai atap sebuah rumah yang diubah menjadi ruang komunal semi-terbuka yang fungsional dan estetis. Dengan pendekatan desain tropis modern, area ini menggabungkan elemen alami seperti kayu, rotan, dan vegetasi hijau untuk menciptakan suasana santai dan sejuk di tengah kepadatan urban. Panel kisi dan anyaman berfungsi sebagai penyaring cahaya dan penambah privasi tanpa menghalangi sirkulasi udara.
FEATURED LOCATION
Jakarta Timur, DKI Jakarta
ESTABLISHED
2025
CLIENTS
Individual
FEATURED PROJECTS : RESIDENTIAL
PESONA KHAYANGAN KAVLING BD
Deretan rumah kavling ini menampilkan desain modern-minimalis yang menyatu dengan kontur alam sekitar. Permainan bidang geometris yang tegas berpadu dengan elemen fasad berwarna monokrom memberikan kesan elegan dan bersih. Setiap unit dirancang dengan carport semi-terbuka yang fungsional, serta bukaan jendela besar untuk memaksimalkan pencahayaan alami dan sirkulasi udara.
FEATURED LOCATION
Depok, Jawa Barat
ESTABLISHED
2024
CLIENTS
Pesona Khayangan
FEATURED PROJECTS : RESIDENTIAL
PESONA KHAYANGAN KAVLING BG
Desain rumah kavling ini mengusung gaya modern kontemporer dengan permainan volume dan material yang dinamis. Kombinasi bentuk kotak yang tegas di lantai bawah berpadu harmonis dengan atap pelana tinggi pada lantai atas, menciptakan siluet fasad yang ikonik dan menarik. Material batu alam, warna netral, serta jendela-jendela vertikal memperkuat kesan elegan sekaligus hangat. Setiap unit memiliki area hijau privat di lantai dua yang memberikan ruang relaksasi serta mendukung pencahayaan alami.
FEATURED LOCATION
Depok, Jawa Barat
ESTABLISHED
2024
CLIENTS
Pesona Khayangan
FEATURED PROJECTS : RESIDENTIAL
PESONA KHAYANGAN KAVLING BL
Rumah kavling ini tampil dengan karakter modern yang kuat melalui komposisi fasad yang rapi dan ritmis. Permainan bidang vertikal yang saling menjorok ke depan-belakang menciptakan dinamika visual yang menarik tanpa kehilangan kesan minimalis. Elemen roster di bagian depan berfungsi ganda sebagai aksen estetis sekaligus penyaring cahaya dan udara, memperkuat kenyamanan tropis dalam hunian. Warna-warna netral seperti putih, abu-abu, dan beige dipilih untuk memberikan nuansa bersih dan elegan.
FEATURED LOCATION
Depok, Jawa Barat
ESTABLISHED
2024
CLIENTS
Pesona Khayangan
FEATURED PROJECTS : RESIDENTIAL
PESONA KHAYANGAN KAVLING BM 13
Desain rumah kavling ini menampilkan pendekatan arsitektur modern dengan permainan massa bertingkat dan aksen vertikal yang mencolok. Dominasi bidang geometris yang tegas diperhalus dengan tekstur material batu ekspos dan elemen hijau pada balkon, menciptakan kesan hangat di tengah kekakuan bentuk. Keberadaan rooftop terrace yang dibingkai oleh railing metal menambah nilai fungsional dan estetika, memberikan ruang terbuka yang ideal untuk bersantai.
FEATURED LOCATION
Depok, Jawa Barat
ESTABLISHED
2024
CLIENTS
Pesona Khayangan
FEATURED PROJECTS : RESIDENTIAL
PESONA KHAYANGAN KAVLING BM 11
Rumah kavling di lahan hook ini memaksimalkan potensi sudut tapak dengan pendekatan desain yang terbuka dan berkarakter. Bentuk massa bertingkat dikombinasikan dengan permainan bidang vertikal dan bukaan lebar di dua sisi fasad, memberikan pencahayaan alami yang optimal dan kesan visual yang dinamis dari berbagai arah. Dengan desain yang responsif terhadap kontur dan posisi lahan, hunian ini tidak hanya tampil estetis, tetapi juga menghadirkan kenyamanan dan fleksibilitas ruang yang lebih luas.
FEATURED LOCATION
Depok, Jawa Barat
ESTABLISHED
2024
CLIENTS
Pesona Khayangan
FEATURED PROJECTS : RESIDENTIAL
PESONA KHAYANGAN KAVLING D
Desain rumah ini mengusung konsep modern tropis dengan sentuhan elegan yang menonjol melalui penggunaan material dan permainan bidang. Fasad menampilkan jendela-jendela tinggi berbingkai coklat tuang memberikan kesan megah sekaligus memperkuat pencahayaan alami ke dalam ruang. Elemen batu alam pada pagar dan landscape hijau di sekelilingnya menambahkan kehangatan alami. Komposisi arsitektur ini menciptakan hunian yang tidak hanya estetis, tetapi juga fungsional dan menyatu dengan iklim tropis.
FEATURED LOCATION
Depok, Jawa Barat
ESTABLISHED
2024
CLIENTS
Pesona Khayangan


































































































